Informationen zum Projekt
Attraktiv, modern und urban: So gestalten sich die 2018 sanierten Mietwohnungen «Stadtwohnungen Illuster».
Die 12 aussergewöhnlichen Wohnungen weisen jeglichen Komfort auf, den Sie sich von einer idealen Stadtwohnung wünschen: Eine erstklassige und gepflegte Ausstattung, eine zentrale Lage mit vielseitigen Einkaufs- und Ausgehmöglichkeiten sowie ein umfassendes Angebot für kulturelle, kulinarische und sportliche Aktivitäten.
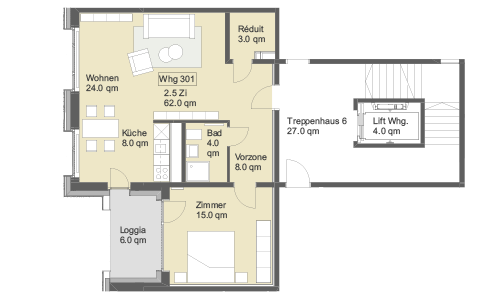
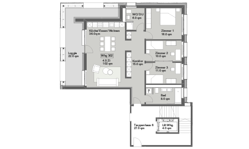
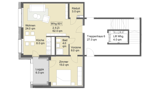
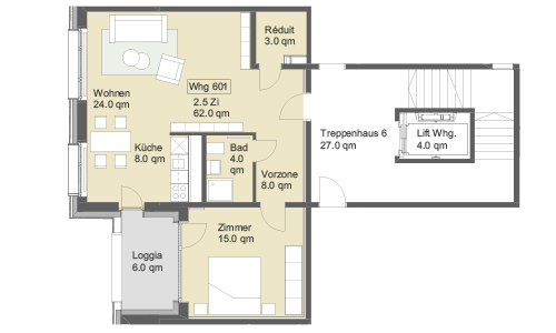
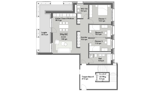
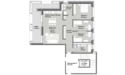
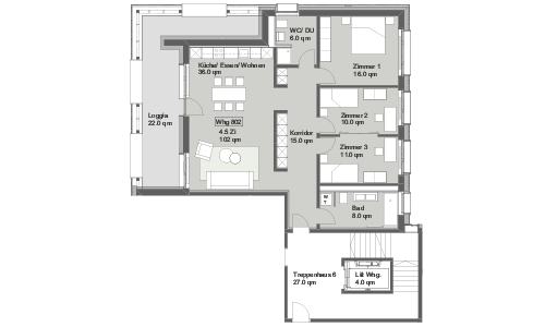
Die Wohnungsgrundrisse überzeugen durch ihre helle, moderne und grosszügige Einteilung. Sämtliche Wohnungen verfügen über eine eigene überdachte Loggia. Zusätzliche Freiflächen und ein Spielplatz stehen auf der Dachterrasse des Gebäudes allen Mietenden zur Mitbenutzung zur Verfügung.




















